***TO DOWNLOAD PROPERTY DOCS*** bit.ly/88QuebecRoadPropertyFilesKC (copy and paste link to browser)
• CONTACT FOR A VIEWING: Text or Call Susa 027 496 9008
• VIEW THE 360 VIRTUAL TOUR ON MOBILE DEVICE: bit.ly/88QuebecRoadVirtualTourKC (copy and paste link to browser)
Welcome to a home that has it all – space, stunning views, and the opportunity to make it truly your own. Perfectly positioned to capture expansive vistas across town and the Centre of New Zealand, the Estuary, Boulder Bank and sea, this sunny home is perfect for a growing family.
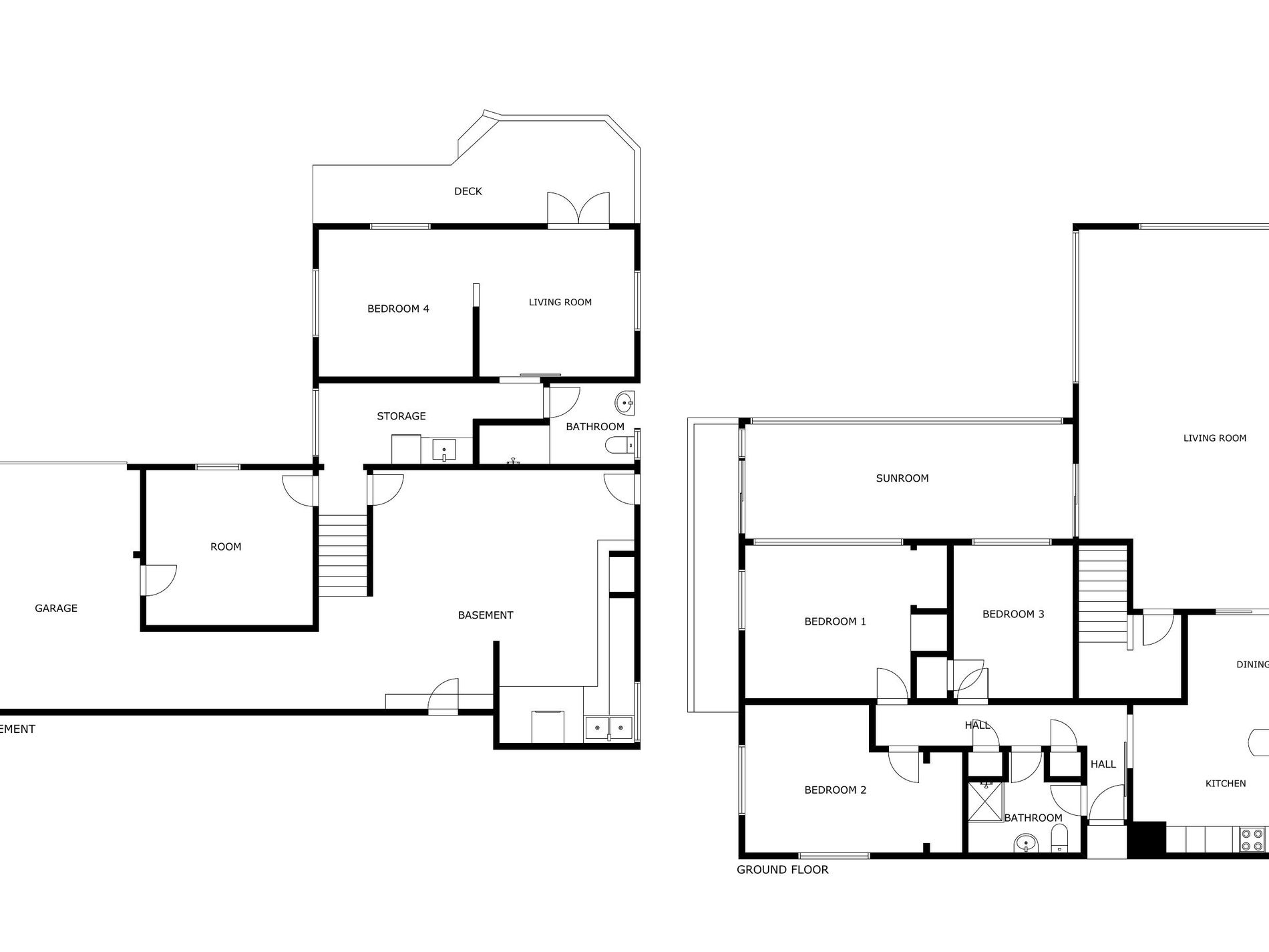
• 4 spacious bedrooms - plenty of room for the kids, guests or a home office
• 2 bathrooms, reducing the morning rush
• Sun-filled living areas perfect for playtime, relaxing and family gatherings
• Open-plan kitchen & dining so you can stay connected while cooking
• Warm and sunny all day
• Family-friendly layout that balances together-time and personal space
• Fabulous views over Nelson, the hills, the harbor and out to sea
• Large section to explore and further develop
• Workshop space and plenty of storage
• Excellent off-street parking, space for boat or camper
• Quiet location, adjacent to the Quebec Road/Arrow Street Reserve
• Easy walk to town
• Call Susa to arrange a private viewing time, no open homes
KEY POINTS:
• Year Built: Circa 1958
• Freehold Title 804 sqm (approximate and indicative)
• Floor Area 230 sqm (approximate and indicative)
• RV $900,000 (2024)
• NCC Rates approx $5,161.75
SCHOOL ZONES LINK:
bit.ly/educationcountsschoolzones
**REGISTER FOR NEW LISTING ALERTS: bit.ly/kcandcobuyeralerts
Please be aware that this information may have been sourced from RPNZ/ Property Guru/ Land Information New Zealand/ Local Council and we have not been able to verify the accuracy of the same. Refer to our Passing Over of Information Statement at: www.kcandco.nz/passing-over-of-information
KC&CO. Real Estate Limited Licensed Agent REAA 2008
Features
- Inbuilt Oven
- Ceramic Hob
- Rangehood
- Bathroom Extractor
- Drapes
- Fixed Floor Coverings
- Light Fittings
- Heat Pump x 2
- Security Lights
- Underfloor Heating in Downstairs Bathroom
- Clothesline
- Garden Shed - Shelter

















































